
(Image provided, MAAC Foundation)

(Image provided, MAAC Foundation)
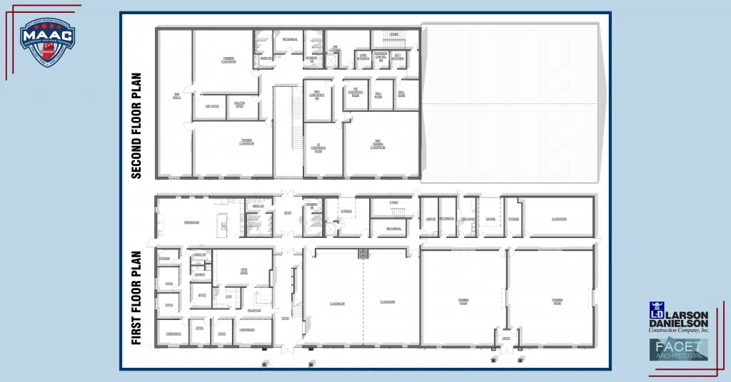
In Valparaiso, the MAAC Foundation says its first responder training campus is expanding. The campus, which opened in 2017, provides access for all first responders – EMT personnel, firefighters, law enforcement officers, and K9 officers – to train at its state-of-the-art facility on Montdale Park Drive in Valparaiso at no cost. “This expansion represents an exciting next chapter for the MAAC Foundation,” said Nicole Gladstone, President and CEO of the MAAC (Multi Agency Academic Cooperative) Foundation. “This new construction will not only strengthen our internal operations but also create new opportunities for training, innovation, and collaboration among the first responder community we proudly serve.” A new headquarters building made possible by the Dean and Barbara White Family Foundation will have more classrooms and office space, a news release said, and adjacent will be Kathryn Hall, named in honor of Kathryn McMillan, whose contribution made this facility possible. It will mainly be an indoor K9 training facility complete with a dog wash but will also have training space that can also be used by other disciplines. The public is invited to attend a groundbreaking ceremony November 6 at 2pm.
“I am honored to have the K9 portion of this project named after me. First responders put their lives on the line for us every day and they deserve the best facilities and training possible. I’m proud that this new construction will play a part in helping them develop those critical skills,” said Kathryn McMillan.
“From the beginning, the MAAC has been about creating a space where first responders can train together, learn from one another, and return home safely to their families. This new headquarters and Kathryn Hall represent the next evolution of that mission. This project will give us additional room and resources to support even more responders across the region, and I couldn’t be prouder of how far we’ve come,” said Stewart McMillan, Founder and MAAC board member. For more information, visit www.maacfoundation.org .





